Pasar al contenido principal

“PAI Colinas del Mar”: Audiencia Pública se realizará este jueves 14 de diciembre

12 de Diciembre, 2023

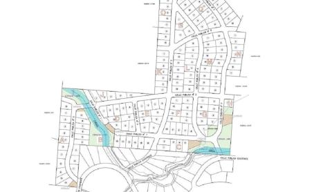
La IDM convoca a vecinos y personas interesadas para la instancia que se desarrollará a las 11 horas en la Casa de la Cultura de Piriápolis. El proyecto comprende los padrones rurales Nº 31960, 31969 y 31970 de la 3ª sección catastral de Punta Colorada.

Se trata de un fraccionamiento de tres padrones rurales -con un total de 20 hectáreas- en 40 lotes urbanos de 4000 metros cuadrados promediales con destino a vivienda turística, en el kilómetro 3.500 del Camino de los Arrayanes.

El Programa de Actuación Integrada (PAI) es un instrumento de Ordenamiento Territorial que permite transformar un sector de suelo categorizado como rural potencialmente transformable (SRPT) a un suelo categorizado como urbano (SU) o suburbano (SS) conforme lo dispuesto en el artículo 21 de la Ley de Ordenamiento Territorial y Desarrollo Sostenible.

Las presentaciones orales que se realicen durante la Audiencia contarán con un tiempo límite de 5 minutos, el que podrá prorrogarse con 3 minutos adicionales y deberán inscribirse en la media hora previa a la Audiencia.

Las instituciones u organizaciones contarán con un tiempo límite de 20 minutos.

Estas presentaciones deberán coordinarse con la Dirección General de Urbanismo, a través del teléfono 42 225 007 hasta el día hábil anterior al de la Audiencia Pública en horario de oficina de 9:15 a 14:45 horas.